About Us
Projects
Contact
About Us
Projects
Contact
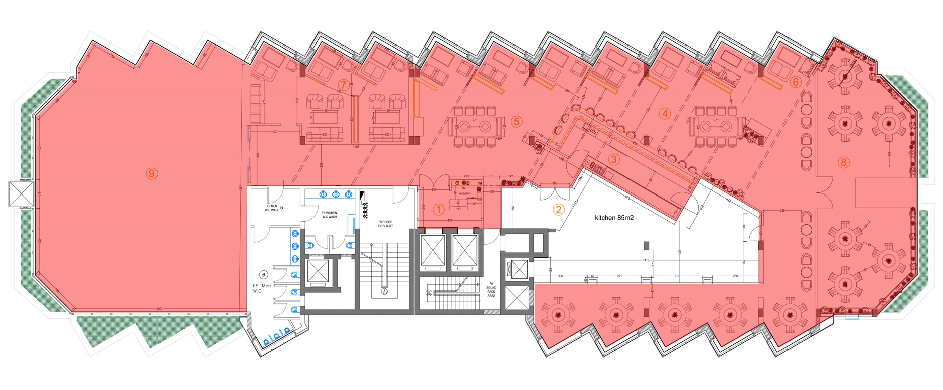
Restaurant in Sheraton Hotel I Vo Huu Linh Architects
Restaurant in Sheraton Hotel I
Vo Huu Linh Architects
Contact design consultant:
Email: vhlarch@gmail.com
WhatsApp: +8490 592 66 04
Address: No. 194, 29/3 Street, Da Nang, Viet Nam
Web:
https://vhlarch.vn/
Pinterest:
https://www.pinterest.com/VoHuuLinhArchitects/
Behance:
https://www.behance.net/VHLArchitects
#VHLArch
,
#KTSVõHữuLinh
,
#Space
,
#Restaurant
,
#SheratonHotel
More:
vhlarch.vn
↑
Back to Top