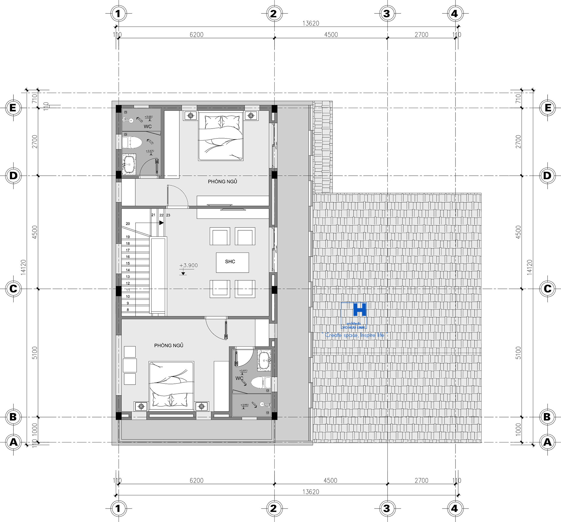
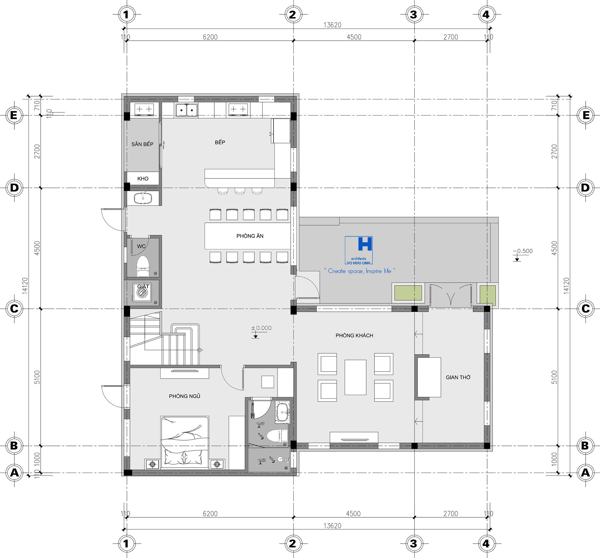
Ngôi Nhà Vườn ở Hải Dương
Local: Hải Dương, Việt Nam
Diện tích lô đất: 30x15m
Diện tích xây dựng: 450m2
Hotline: 0905926604
Email: vhlarch@gmail.com
Web: https://vhlai.com/
-----------------------------
More: vhlarch.vn